Eladó Családi ház Dunaharaszti - Petőfitelep

205 m2Alapterület 6 Szoba
180 000 000 Ft Ár
392986Azonosító
További adatok

566 m2 Telek

Kertre néző Kilátás

Új Állapot

Tégla Szerkezet

22 m2 Erkély/terasz

Gáz (cirkó) Fűtés

Dupla komfort Komfort

Saját garázs Parkolás

Tömegközlekedés

Amerikai konyhás

Van Kertkapcsolat

2026 Építés éve

Hitelkalkuláció – a részletekért kattintson valamelyik bank logójára!

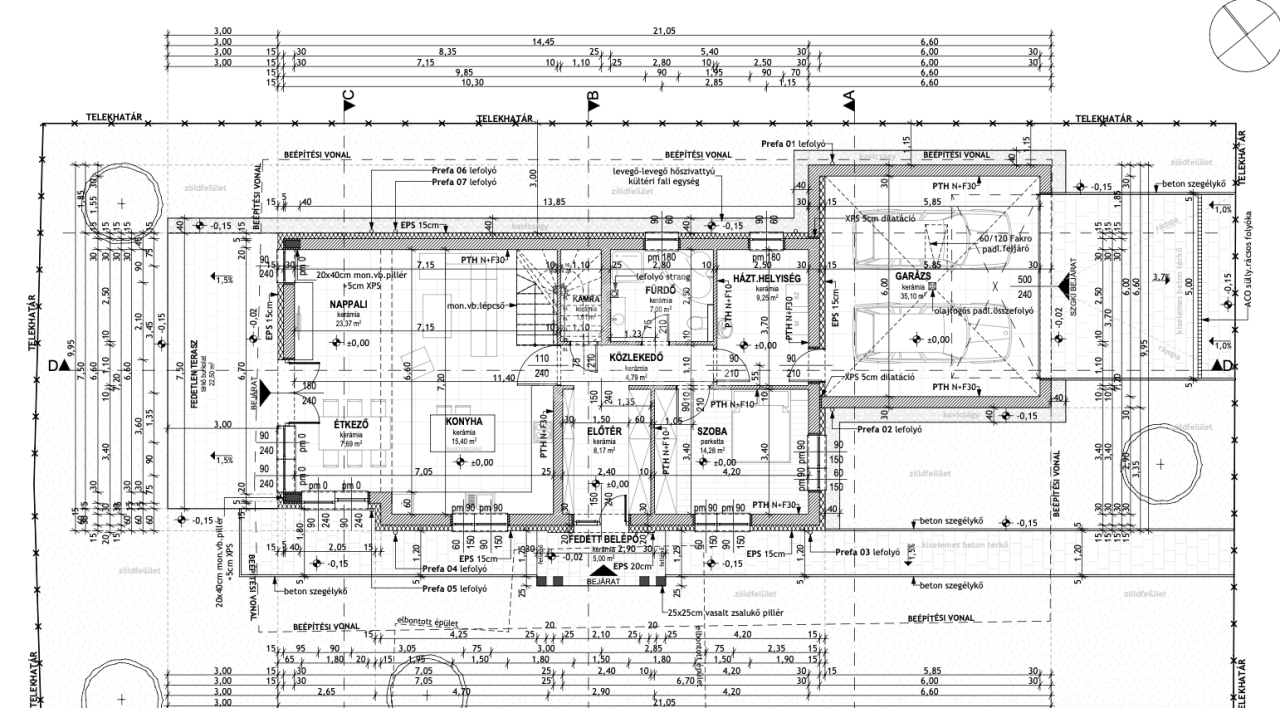
Dunaharasztiban új építésű önálló családi ház, 2026-os átadással eladó.

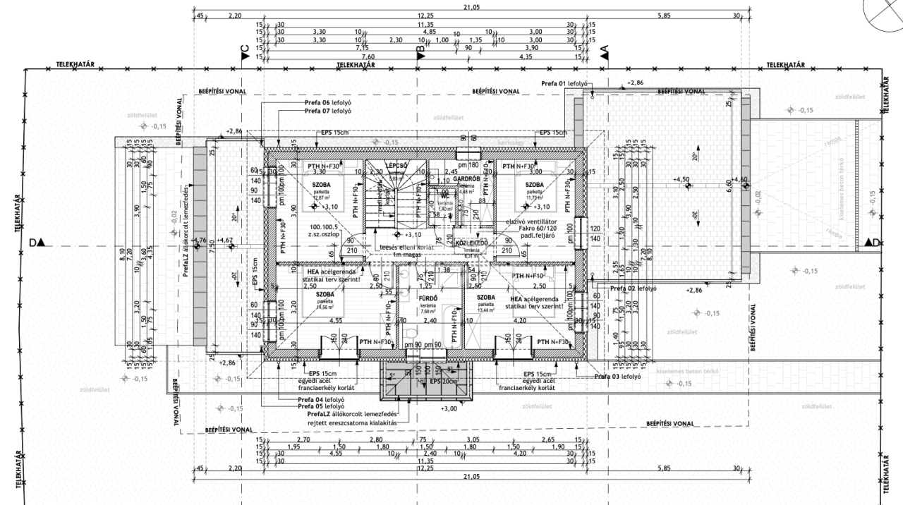
Petőfi-liget városrészén a Bezerédi lakópark közelében, 566 nm-es telken, két szintes 5 hálószobás két fürdős, dupla garázzsal rendelkező ingatlan várja új tulajdonosát.

A modern kialakítású energiahatékony épület belső terei még igény szerint módosíthatóak, az építkezés ezen szakaszában.
A kivitelező referencia munkái megtekinthetőek.

Főbb paraméterek:
- nettó alapterület: 205m2 (169,83+35,10 garázs),
- 566 m2 telek,
- földszinten amerikai konyhás nappali, egy szoba, kamra, fürdőszoba, háztartási helyiség, dupla garázs,
- emeleten négy hálószoba, fürdőszoba, külön Wc, gardrób.

Műszaki paraméterek:
- 30-as kerámia főfalak, 10 cm Ytong válaszfal,
- főfal 15 cm EPS, aljzatban 12 cm, födémen 25 cm szigetelés
- járda az épület körül, kocsibeálló a telken,
- 3 x 16 A,
- 3,2 KW napelem – alacsony rezsiköltségek,
- 2 állásos garázs, szankcionált automata kapuval,
- 3 rétegű 6 légkamrás műanyag nyílászárókkal redőnnyel, szúnyoghálóval,
- fűtés és melegvízellátás kondenzációs gázkazánról vagy hőszivattyúval,
- padlófűtés és radiátoros hőleadók,
- hűtő-fűtő klíma előkészítés,
- riasztórendszer, kaputelefon előkészítés,
- mészkőpárkányok,
- burkolatok 6000Ft/m2-ig a vételárban.

Várom szíves hívását!
Radics Anna

Radics Anna

Hívjon bizalommal

+36-30-921-Mutasd!

További hirdetéseim

Ingatlaniroda
GDN Ingatlanhálózat - Your Home
+36 1 487 0265

Küldjön üzenetet

Visszahívást kérek

Hasonló ingatlanok