Eladó Családi ház Érd - Érd Dombosváros

194 m2Alapterület 6 + 1 Szoba
149 990 000 Ft Ár
394935Azonosító
További adatok

400 m2 Telek

Kertre néző Kilátás

Felújított Állapot

Tégla Szerkezet

21 m2 Erkély/terasz

Gáz (cirkó) Fűtés

Dupla komfort Komfort

Saját garázs Parkolás

Kiváló Tömegközlekedés

Amerikai konyhás

Van Kertkapcsolat

1990 Építés éve

Délkeleti Tájolás

Hitelkalkuláció – a részletekért kattintson valamelyik bank logójára!

Érd | 3 külön lakrész | 3 szint | medencés kert | többgenerációs vagy befektetési lehetőség

Érd egyik nyugodt, kertvárosias részén, Dombosváros környékén kínálunk megvételre egy háromszintes, világos, jó állapotú családi házat, amely nem egy szokványos ingatlan, hanem tudatosan kialakított, többfunkciós élettér.

A 400 m²-es telken fekvő épület három, egymástól jól elkülönülő lakrésszel rendelkezik, így ideális választás lehet:
– több generáció együttélésére
– bérbeadásra, akár több irányba
– vagy olyan élethelyzetre, ahol a lakás és a munka egy helyen kap szerepet

Átgondolt térszervezés: három szint, három külön élettér

Alsó szint ( 91 m²)
Garázs és tárolók mellett egy külön bejáratú, 53 m²-es lakrész került kialakításra nappali + félszoba, étkezős konyha és fürdő elrendezéssel.
Ez a szint kiválóan használható vendégtérként, irodaként vagy külön kiadható egységként.

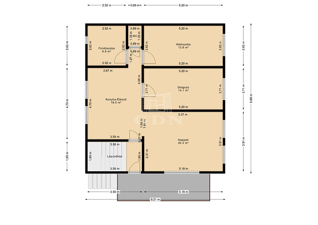
Középső szint (80 m² + 12,6 m² terasz)
A ház fő lakószintje, ahol egy tágas nappali, két hálószoba, étkezős konyha, valamint egy sarokkádas fürdőszoba és külön WC található.
A terasz a belső tér természetes kiterjesztéseként működik.

Tetőtéri lakás (61 m² + 7,8 m² erkély)
Önálló, világos lakás nappalival, hálószobával, konyhával, fürdővel és külön WC-vel.
A tetőtér kifejezetten napfényes, jól használható elrendezéssel.
A két felső szint külön bejáraton, lépcsőházból közelíthető meg, ami a szeparálhatóságot tovább erősíti.

Műszaki tartalom és fenntarthatóság
Az ingatlan műszaki kialakítása a többfunkciós használatot támogatja:
– két kombi gázcirkó (alsó + középső szint / tetőtér külön)
– szintenként külön villanyóra
– közös víz- és gázmérő
– hűtő-fűtő klímák minden szinten

A fenntartás jól tervezhető, a teljes ház rezsije:
– fűtés: kb. 18 000 Ft/hó
– villany: kb. 13 000 Ft/hó
– víz + csatorna: kb. 11 000 Ft/hó

Kert – használható, nem csak nézni jó
A 400 m²-es, gondozott kert valódi élettér:
három filagória, hintaágy és egy fűthető medence biztosítja a kikapcsolódást.
A kert kialakítása ideális családi programokhoz, vendégfogadáshoz vagy akár bérbeadás esetén is értéknövelő tényező
.
Parkolás garázsban és a telken belül több autó számára is biztosított.

Elhelyezkedés: nyugodt környezet, gyors kapcsolatok
Az ingatlan Érd csendes, kertvárosias részén található, ahol a mindennapi élethez szükséges infrastruktúra könnyen elérhető.
– iskola, óvoda, rendelő, gyógyszertár a közelben
– buszmegálló 2 perc sétára
– Kelenföld (M4 metró) ~25 perc alatt elérhető

Kinek ideális?
Ez az ingatlan azoknak szól, akik:
– több generáció számára keresnek jól működő megoldást
– befektetésben gondolkodnak és több lakrészt hasznosítanának
– vagy egy olyan házat szeretnének, ahol a tér alkalmazkodik az élethelyzethez.
Radics Anna

Radics Anna

Hívjon bizalommal

+36-30-921-Mutasd!

További hirdetéseim

Ingatlaniroda
GDN Ingatlanhálózat - Your Home
+36 1 487 0265

Küldjön üzenetet

Visszahívást kérek

Hasonló ingatlanok