Eladó Családi ház Dunaharaszti - Móra Ferenc utca

254 m2Alapterület 7 Szoba
138 900 000 Ft Ár
392829Azonosító
További adatok

495 m2 Telek

Udvari Kilátás

Jó állapotú Állapot

Tégla Szerkezet

Házközponti Fűtés

Összkomfort Komfort

Saját garázs Parkolás

Tömegközlekedés

Amerikai konyhás

Van Kertkapcsolat

1930 Építés éve

Délkeleti Tájolás

Hitelkalkuláció – a részletekért kattintson valamelyik bank logójára!

Eladó kétgenerációs önálló családi ház Dunaharasztiban.

Dunaharaszti Óvárosában kínálunk megvételre egy nettó 215 nm alapterületű, háromszintes, téglából épült, önálló családi házat 495 nm-es telken.
A telken található még, egy nettó 38,5 nm egyszintes külön bejáratú tégla falazatú lakrész + 22 nm-es kisház is. Az utcafrontról dupla garázs van.

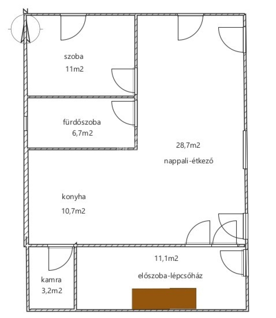
Földszint:
- előszoba 11,1 nm,
- konyha+ ebédlő+ nappali 39,4 nm,
- kamra 3,2 nm,
- fürdőszoba + WC 6,7 nm,
- szoba 11 nm,
-----------------------
71,4 nm

Emelet:
- közlekedő 25,2 nm
- szoba 12,6 nm,
- szoba 15,8 nm,
- szoba 11,8 nm,
- gardrób szoba 7,3 nm,
- fürdőszoba 3,9 nm,
-----------------------------
76,6 nm

Szuterén:
- lépcsőház 11,7 nm,
- kamra 3,4 nm,
- műhely 34,2 nm,
- WC, mosdó 1,5 nm,
- szuterén tároló 17 nm,
--------------------------------
67,8 nm.

Külön bejáratú lakrész /ALBÉRLETNEK IS KIVÁLÓ/.
- nappali 12,6 nm,
- szoba 15,3 nm,
- konyha 5,8 nm,
- füdőszoba /zuhanyzó, wc, mosdó/ 4,8 nm.
..................................................
38,5 nm.

Az ingatlan elhelyezkedése kiváló ezért akár vállalkozások számára is nagyszerű lehetőség.

Vonat, buszmegálló a közelben. Iskola, óvoda, posta, orvosi rendelő séta távolságra található.

Amivel segítjük az Ön ingatlanvásárlását:
- ingyenes hitelügyintézés,
- jogi háttér,
- földhivatali ügyintézés,
- energetikai tanúsítvány,
- a vevő számára az ingatlanközvetítés ingyenes.

Irodánk 30 éves szakmai tapasztalattal áll ügyfelei rendelkezésére!

Várom szíves megkeresését!
Radics Anna

Radics Anna

Hívjon bizalommal

+36-30-921-Mutasd!

További hirdetéseim

Ingatlaniroda
GDN Ingatlanhálózat - Your Home
+36 1 487 0265

Küldjön üzenetet

Visszahívást kérek

Hasonló ingatlanok