Eladó Ikerház Mogyoród - Szőlő utca

142 m2Alapterület 5 Szoba
122 490 000 Ft Ár
392851Azonosító
További adatok

240 m2 Telek

Udvari Kilátás

Új Állapot

Tégla Szerkezet

4 m2 Erkély/terasz

Hőszivattyú Fűtés

Dupla komfort Komfort

Saját beálló Parkolás

Kiváló Tömegközlekedés

Amerikai konyhás

Van Kertkapcsolat

2026 Építés éve

Hitelkalkuláció – a részletekért kattintson valamelyik bank logójára!

MOGYORÓD, ÚJÉPÍTÉSŰ IKERHÁZ, korszerű megoldásokkal, 5 SZOBÁVAL!
20% ÖNERŐVEL MEGVÁSÁROLHATÓ!
Építkezès folyamatban!
Eladásra kínálok Mogyoród belterületi részén, újszerű házak szomszédságában, kiváló közlekedéssel kettő ikerház felet.
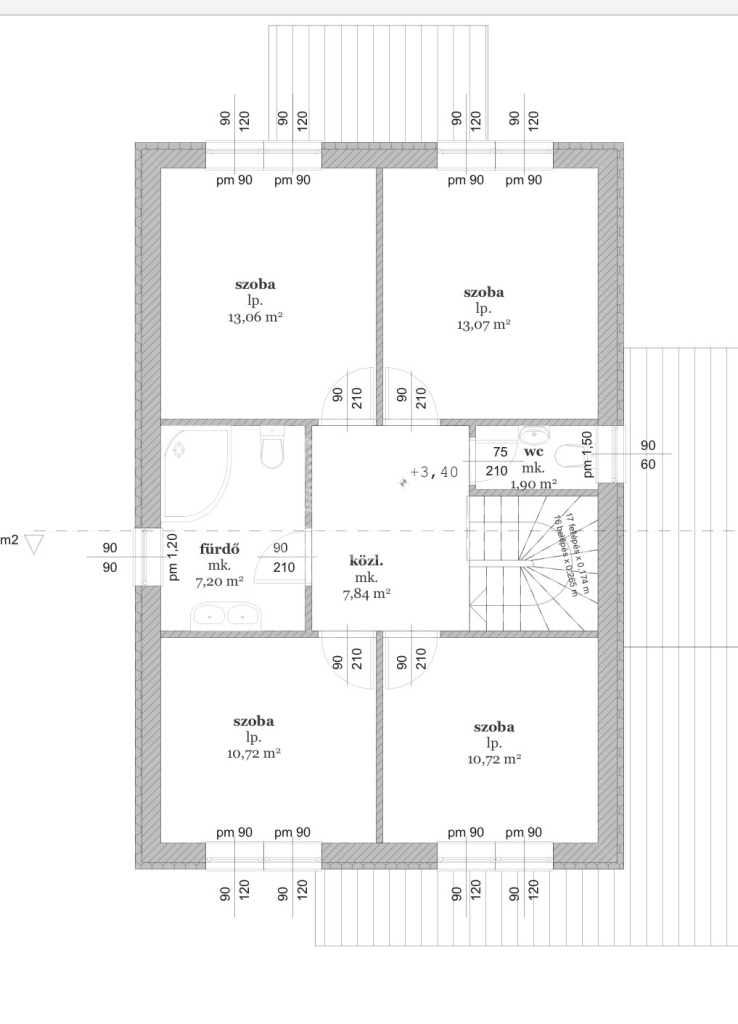
Felosztásauk: földszint+emelet, mindez 142 nm alapterületen!
A házba érve az előszobából nyílik a háztatrtási helyiség, a fürdőszoba, egy különálló mosdó, és a 32 nm nagyásgú tágas, és világos amerikai konyhás nappali, amelyből a közel 9 nm nagyságú teraszra érkezünk.
Az emeleten 4 db hálószoba, egy fürdőszoba, és egy különálló mosdó szolgálja a kényelmet.
30-as porotherm tégla falak, melyeket 10 cm vastag ytong válaszfalak egészítenek ki!
Hőszigetelés:
A külső falak külső síkján 10 cm hőszigetelés készül. A lábazati hőszigetelés a terepcsatlakozástól számított 30 cm-ig zártcellás hőszigetelésből készül 10 cm vastagsággal.
A tetőszerkezet alá 30 cm hőszigetelés kerül.
A földszinti padozat alatt 10+5 cm lépésálló hőszigetelés készül
A fűtést hőszívattyú biztosítja, padlőfűtéses hőleadással.
Az ablakok thermo üvegek.
Mit tartalmaz még az ár? Az ár tartalmazza az elektromos kapu, klíma,
kamerarendszer és riasztórendszer kiállásait is!
Mindez 862.676. ft-os négyzetméteráron!
Fontos kiemelni, hogy amint a látványterveken is látszik egymás mellett elhelyezkedő, külön bejárattal rendelkeő ikerház, vagyis maximális az intimitás a saját területen!
Hívjon bizalommal!
Radics Anna

Radics Anna

Hívjon bizalommal

+36-30-921-Mutasd!

További hirdetéseim

Ingatlaniroda
GDN Ingatlanhálózat - Your Home
+36 1 487 0265

Küldjön üzenetet

Visszahívást kérek

Hasonló ingatlanok