Eladó Telek Budapest XIV. kerület - ZUGLÓBAN ÉPÍTÉSI PROJEKT ELADÓ

1 077 m2Alapterület 0 Szoba
450 000 000 Ft Ár
388341Azonosító
További adatok

Utcai Kilátás

Kiváló Tömegközlekedés

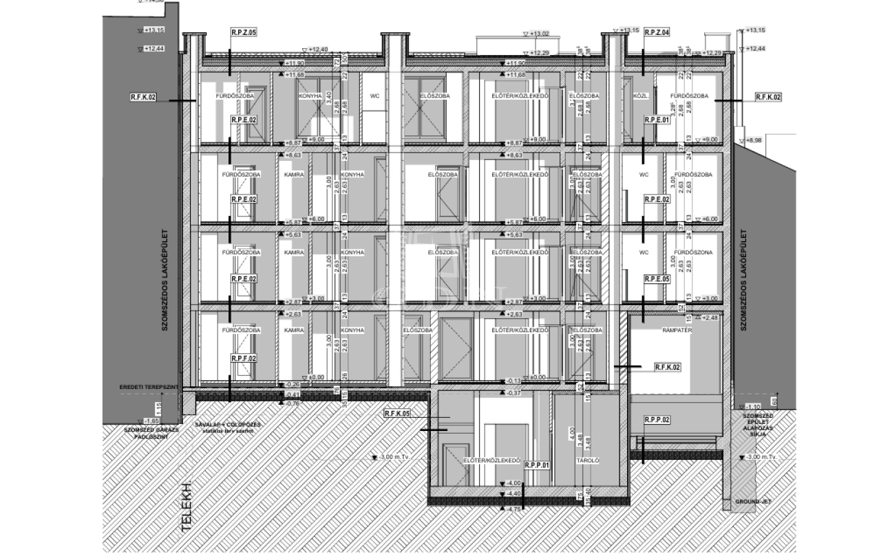
Zuglóban, frekventált helyen eladó fejlesztési telek engedélyezett, 13 lakásos társasház projekttel!

Eladó egy 1077 m²-es építési telek Zugló egyik legkeresettebb részén, érvényes építési engedéllyel rendelkező, prémium társasházprojekttel!

A tervezett beruházás jellemzői:

-13 lakás 4 szinten, jól átgondolt alaprajzokkal

-Pinceszinten 13 gépkocsibeálló

-Lift

-Külön tárolók a lakók részére

-Közös helyiségek (pl. babakocsi-/kerékpártároló)

-Erkélyek, teraszok, valamint tetőteraszos lakások

-Zöldtető, környezetbarát és esztétikus kialakítással

-Korszerű műszaki tartalommal és energiatakarékos megoldásokkal tervezve

Elhelyezkedés:

A projekt Zugló frekventált, jól megközelíthető részén található, csendes utcában, de közel tömegközlekedéshez, bevásárlási lehetőségekhez, iskolákhoz és egyéb szolgáltatásokhoz.

A projekt előnyei:

-Azonnal induló beruházás – engedélyezett tervek

-Magas hozamú, jól értékesíthető lakások

-Kimagasló lokáció és műszaki tartalom

-Kiváló lehetőség fejlesztők, befektetők számára

A hirdetésben feltüntetett adatok és információk csak tájékoztató jellegűek, jogi kötelezettséggel nem bíró jognyilatkozatnak minősülnek, mely nem tekinthető ajánlat tételnek és nem járnak az eladóra nézve kötelező ajánlati kötöttséggel.

Amennyiben felkeltettem az érdeklődését vagy bármely további kérdése lenne, keressen bizalommal.

Akár hétvégén is!

CSA
Radics Anna

Radics Anna

Hívjon bizalommal

+36-30-921-Mutasd!

További hirdetéseim

Ingatlaniroda
GDN Ingatlanhálózat - Your Home
+36 1 487 0265

Küldjön üzenetet

Visszahívást kérek

Hasonló ingatlanok