Eladó Lakás (panel) Budapest XIV. kerület - Vezér utca

55 m2Alapterület 1 + 1 Szoba
71 500 000 Ft Ár
394756Azonosító
További adatok

Utcai Kilátás

Felújított Állapot

Panel Szerkezet

7 m2 Erkély/terasz

Távfűtés Fűtés

Összkomfort Komfort

Utcán, közterületen Parkolás

Emelet 2

Van Lift

Tömegközlekedés

Nem Amerikai konyhás

Nincs Kertkapcsolat

1980 Építés éve

Közös költség 16 750 Ft

Délkeleti Tájolás

Hitelkalkuláció – a részletekért kattintson valamelyik bank logójára!

Zugló egyik legjobb fogása – 2 loggiás, felújított lakás a Füredi lakótelepen

Zugló közkedvelt részén, a Füredi lakótelepen kínálok megvételre egy 55 m²-es, 2. emeleti, teljeskörűen felújított lakást, amely ritka adottságával – két külön loggiával – azonnal kitűnik a piacon.

Ez nem egy átlagos panel. Ez egy jól átgondolt, élhető otthon, ahol minden négyzetméternek funkciója van.

- Ami miatt azonnal beleszeretnek:
-2 külön loggia – extra tér, reggeli kávé, esti kikapcsolódás
-Klímás lakás – nyáron is komfort
-Nappali + külön háló – ideális pároknak, kis családnak
- Külön nyíló szobák – nincs átjárás
- Gardrób + kamra – ritka, brutál jó tárolás
- Felújítás (2017 – nem kozmetika, hanem alapoktól):
-villanyvezetékek teljes cseréje
-burkolatok és beltéri ajtók cseréje
-radiátorcsere
-áramhálózat bővítés

Magyarul: nem kell hozzányúlni, költözöl és kész.

Főbb adatok:
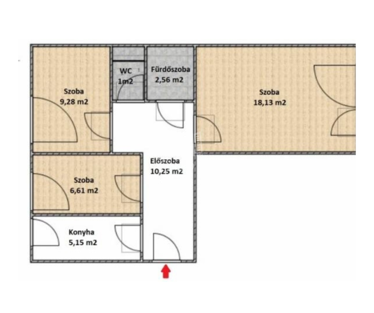
-55 m²
-1 + 1 fél szoba
-2 emelet
-lift + teherlift
tehermentes


Örs vezér tere ~10 perc séta
több buszjárat pár perc
boltok, éttermek, minden a közelben
óvoda, iskola, orvos – családbarát környezet

Kinek ideális?
első lakásnak
fiatal párnak
kisgyermekes családnak
befektetésnek (könnyen kiadható lokáció!)
Radics Anna

Radics Anna

Hívjon bizalommal

+36-30-921-Mutasd!

További hirdetéseim

Ingatlaniroda
GDN Ingatlanhálózat - Your Home
+36 1 487 0265

Küldjön üzenetet

Visszahívást kérek

Hasonló ingatlanok