Eladó Lakás (téglaépítésű) Budapest IX. kerület - Üllői út

60 m2Alapterület 2 Szoba
85 000 000 Ft Ár
394187Azonosító
További adatok

Utcai Kilátás

Jó állapotú Állapot

Tégla Szerkezet

4 m2 Erkély/terasz

Házközponti Fűtés

Összkomfort Komfort

Utcán, közterületen Parkolás

Emelet 3

Van Lift

Kiváló Tömegközlekedés

Amerikai konyhás

Nincs Kertkapcsolat

1962 Építés éve

Közös költség 36 Ft

Keleti Tájolás

Hitelkalkuláció – a részletekért kattintson valamelyik bank logójára!

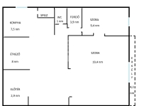
Eladó egy kiváló elosztású 60nm-es tégla lakás a közkedvelt Nagyvárad tér közvetlen közelében.
Ha fontos a számodra a jó közlekedés,de nyugodt otthonra vágysz,ez a te választásod!
A környék infrastruktúrája kíváló.Pár perc sétára óvoda,iskola,egyetem,valamint számos bevásárlási lehetőség.
A közelben Semmelweis Egyetem több intézménye és klinikája.
Közlekedés szempontjából kíváló választás:Az Üllői út Budapest egyik fő sugárútja,amely közvetlen kapcsolatot biztosít a belváros és a külső városrészek között. M3-as metró,több villamos,buszjárat, gyors kapcsolat a belvárossal és a külső kerületekkel.
Amiért érdemes megnézned:
Tágas és napfényes,nagy ablakok,világos terek.
Praktikus elosztás külön nyíló szobák,valamint külön fürdőszoba és a wc.
A lakáshoz tartozik saját 2nm-es tároló ami kulccsal zárható.
A ház liftes,tiszta rendezett.
A társasház extrái:Az épület belső udvarral rendelkezik,ahol biciklitároló és a gyerekeknek egy kisebb homokozó is helyet kapott.
Az ingatlan tehermentes,így gyorsan birtokba vehető.
Radics Anna

Radics Anna

Hívjon bizalommal

+36-30-921-Mutasd!

További hirdetéseim

Ingatlaniroda
GDN Ingatlanhálózat - Your Home
+36 1 487 0265

Küldjön üzenetet

Visszahívást kérek

Hasonló ingatlanok