Eladó Lakás (panel) Budapest IV. kerület - Pozsonyi utca

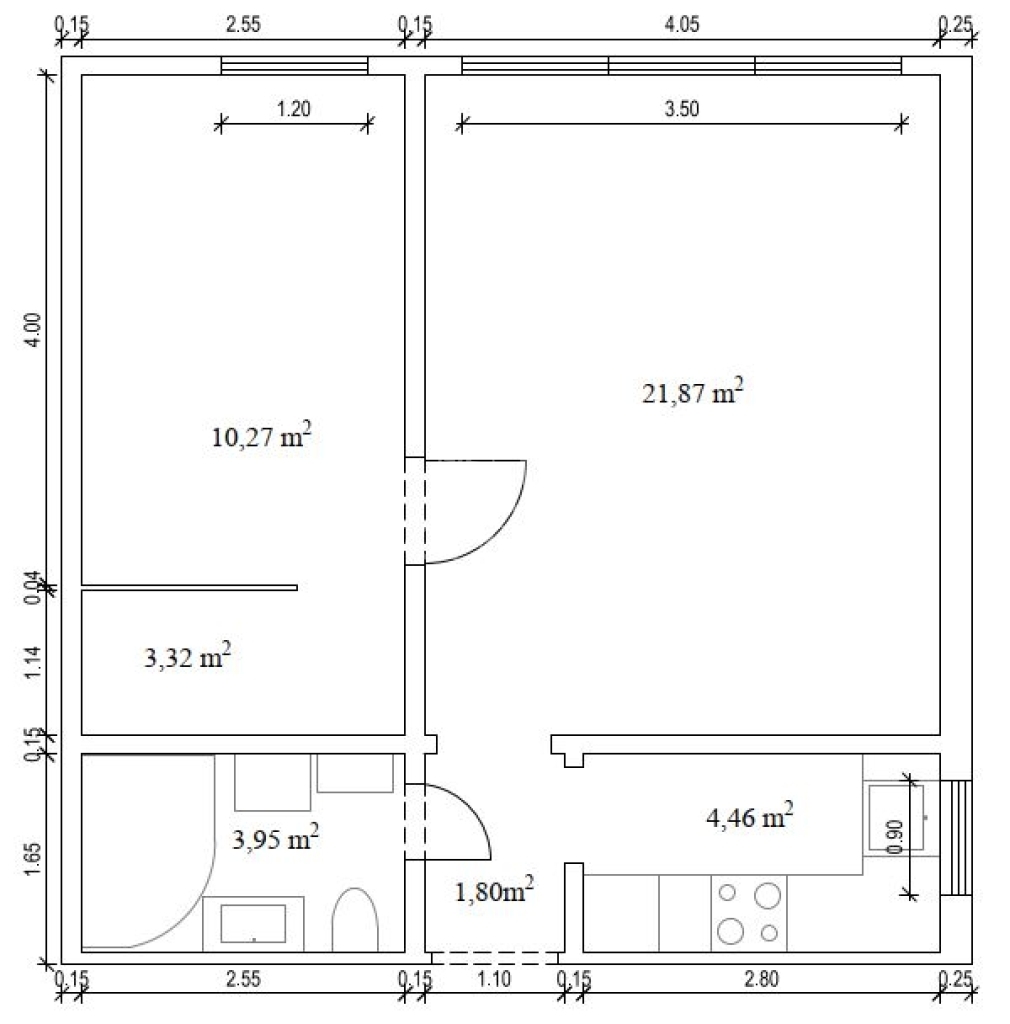
46 m2Alapterület 1 + 1 Szoba
66 500 000 Ft Ár
393949Azonosító
További adatok

Utcai Kilátás

Felújított Állapot

Panel Szerkezet

Távfűtés Fűtés

Összkomfort Komfort

Utcán, közterületen Parkolás

Emelet 2

Van Lift

Kiváló Tömegközlekedés

Nem Amerikai konyhás

Nincs Kertkapcsolat

1985 Építés éve

Közös költség 12 300 Ft

Hitelkalkuláció – a részletekért kattintson valamelyik bank logójára!

OTTHON START kompatibilis – IV. kerület, lakótelep, FELÚJÍTOTT, 46 m², 1+1 fél szoba, 2. emelet, felújított

Eladó világos, felújított panellakás Újpest közkedvelt részén
Parkos, nyugodt környezet – kiváló közlekedéssel
46 m² | 1 + 1 fél szoba
2. emelet | liftes ház
Nyugati fekvés – napfényes, barátságos terek
Teljes felújítás (víz, villany, burkolatok)
Műanyag nyílászárók redőnnyel
Biztonsági ajtó
Új fűtőtestek
Hűtő-fűtő klíma
Ablakos, világos konyha
Beépített, gépesített (Gorenje, Samsung, Bosch) – a vételár része
Kádas fürdő, modern kialakítás
Gardrób + beépített bútorok
Mosógép is a vételár része
Közös költség: 12.600 Ft/hó
Rezsi kb.: 20.000 Ft/hó
Távfűtés
Ingyenes utcai parkolás
Közlekedés:
20E, 120, 121, 25, 30 buszok pár perc sétára
12-es, 14-es villamos a közelben
M3 metró (Újpest-központ) villamossal 1 megálló
Boltok, iskola, óvoda, gyógyszertár a közelben
Ideális első lakásnak, párnak vagy befektetésnek
1/1 tulajdon | gyorsan költözhető
Radics Anna

Radics Anna

Hívjon bizalommal

+36-30-921-Mutasd!

További hirdetéseim

Ingatlaniroda
GDN Ingatlanhálózat - Your Home
+36 1 487 0265

Küldjön üzenetet

Visszahívást kérek

Hasonló ingatlanok